Monte-Carlo Real Estate

Offices for sale in Monaco

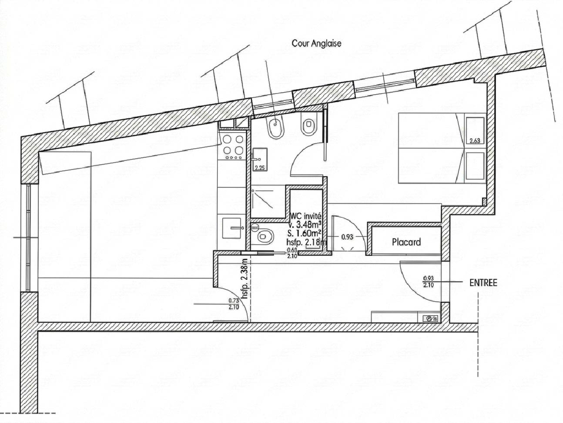
LE MARGARET- ONE BEDROOM FOR SALE - BRAND NEW FINISHES

Back to listing

Stunning fully renovated one-bedroom apartment with high-end finishes, quiet setting and prime location. Bright, functional and move-in ready, just steps from beaches, shops and restaurants.

2 480 000 €
No. rooms : 2 rooms
Product type : Apartment
City : Monaco
Living area : 52 sqm
Total area : 52 sqm
Floor : 2
Furnished : 1

Wonderful one-bedroom apartment for sale, fully renovated, in brand-new condition, for mixed use and sold with a cellar.

The apartment offers high-end finishes and consists of an entrance hall with corridor, a bedroom (with en-suite bathroom equipped with shower, WC and bidet), a guest WC with shower, and a living room with a fully equipped open-plan kitchen. Everything is new.

The apartment offers ample storage, with the possibility to create additional space if needed. The bedroom is very generously sized.

Independent air conditioning, high-quality materials.

Quiet apartment located in a sought-after area, close to beaches, supermarkets, restaurants, and the international school.


Property location

Contact

* required information

Back to listing

FR EN IT