Monte-Carlo Real Estate

Offices for sale in Monaco

Spacious office with parkings

Back to listing

5 405 000 €
No. rooms : 5 rooms
Product type : Office
City : Monaco
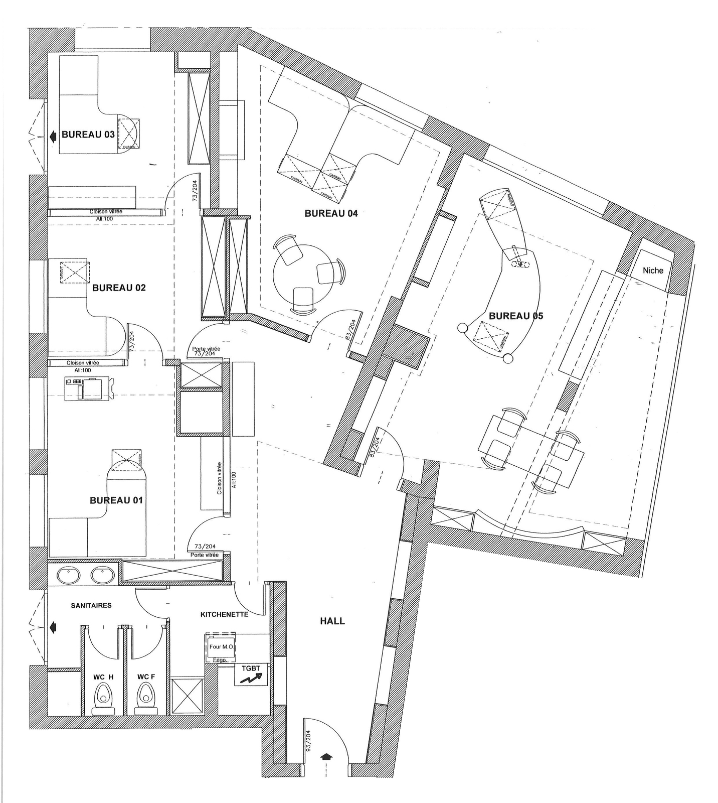
Living area : 147 sqm
Total area : 147 sqm
Floor : 1
Release date : À convenir
Parking : 2

Ces locaux de standing agencés et décorés avec goût peuvent être vendus avec le mobilier.

Ils se composent de 5 zones de travail, 1 kitchenette et 1 zone sanitaires.

De nombreuses fenêtres assurent une belle luminosité.

Ils sont actuellement loués jusqu'au 14 octobre 2027.


Property location

Contact

* required information

Back to listing

FR EN IT